Contents
Masjid Agung Demak adalah salah satu Masjid tertua di Indonesia yang masih berdiri kokoh hingga saat ini. Masjid dengan bangunannya yang memiliki nilai sejarah perkembangan Islam di Jawa, sekarang menjadi salah satu ikon dari Kota Demak Jawa Tengah.
Sejarah
sumber : https://www.desacilembu.com/
Para Da’i yang disebut Walisongo dahulu memiliki misi mendakwahkan Islam di Tanah Jawa, dan kota Demak menjadi pusat penyebaran Islam. Pada mulanya pembangunan Masjid ini melalui tiga tahapan. Pada tahun 1466 Masehi, menjadi tahapan pertama pembangunan masjid. Saat itu masjid masih menjadi sebuah bangunan Pondok Pesantren Glagahwangi yang diasuh oleh Sunan Ampel. Tahap kedua pembangunan dilakukan pada tahun 1477 Masehi, bangunan pondok tadi dibangun menjadi Masjid Kadipaten Glagahwangi Demak. Dan tahap yang ketiga ketika berdirinya Kesultanan Demak, Sultan I Demak yang bernama Raden Patah merenovasi masjid menjadi Masjid Agung Demak.
sumber : https://malangtimes.com/
Menurut prasasti yang berada di mihrab masjid, Masjid ini dibangun pada tahun 1401 Saka. Prasasti gambar bulus memberikan makna, kepala yang artinya angka 1 (satu), 4 kaki bulus memiliki makna angka 4 (empat), badan bulus yang bulat bermakna angka 0 (nol), dan ekor bulus menjadi makna dari angka 1 (satu).
Lokasi Masjid Agung Demak
sumber : https://belajar.kemdikbud.go.id/
Masjid Agung Demak berlokasi di alun-alun kota Demak, sehingga sangat mudah ditemukan. Lokasi detail Masjid ini tepatnya berada di Jalan Sultan Fatah, Kampung Kauman, Kelurahan Bintoro, Kecamatan Demak, Kabupaten Demak, Jawa Tengah. Untuk menuju ke lokasi Masjid Agung Demak jika ditempuh dari Terminal Demak dengan jarak 1 km membutuhkan waktu sekitar 5 menit.
Dari Semarang, jika naik bisa turun di Terminal Demak, dilanjutkan dengan naik becak atau ojek dari terminal menuju ke kawasan Masjid Agung Demak. Jika menggunakan kendaraan pribadi, perjalanan bisa langsung menuju kawasan Masjid Agung Demak dan parkir di taman parkir di dekat kompleks masjid.
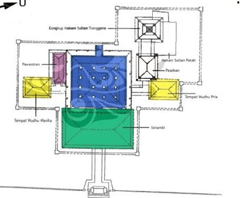
Denah Masjid
sumber : https://belajar.kemdikbud.go.id/
Di atas lahan seluas 12.752,74 meter persegi menjadi lokasi keberadaan Masjid Agung Demak, luas bangunan utama masjid 537,5 meter persegi, dan untuk luas serambi masjid 497 meter persegi.
7 Keunikan Masjid Agung Demak
Saka Tatal
sumber : https://paragram.id/
Sultan I Demak bersama Walisongo sendiri memimpin pembangunan Masjid Agung Demak yang dibantu oleh masyarakat sekitarnya. Bangunan utama penopang atap masjid yang disebut soko guru secara langsung dikerjakan oleh empat orang wali, yaitu Sunan Bonang yang membuat soko guru disisi barat laut, Sunan Kalijaga yang membuat soko guru disisi timur laut, Sunan Ampel yang membuat soko guru sisi tenggara, dan yang sisi barat daya dikerjakan oleh Sunan Gunung Djati. Keempat soko guru itu disebut Saka Tatal, karena terbuat dari serpihan-serpihan kayu, namun memiliki kekuatan luar biasa dengan terbukti hingga saat ini keempat Saka Tatal ini masih kokoh berdiri.
Bangunan Masjid Agung Demak seluruhnya ditopang dengan tiang atau saka yang berjumlah 128 saka. Saka Tatal adalah 4 tiang utama masjid. Untuk tiang penyangga bangunan masjid lainnya berjumlah 50 saka. Kemudian untuk serambi masjid ditopang dengan jumlah 28 saka serta saka kelilingnya ada 16 saka.
Atap Tajuk
sumber ; https://id.wikipedia.org/
Masjid Agung Demak memiliki atap bertumpuk tiga, atap ini terbuat dari bilah-bilah kayau yang tipis atau disebut sirap, kemudian puncak atap disebut mustaka. Bangunan atap masjid merupakan gaya arsitektur Majapahit berpadu dengan gaya khas rumah adat Jawa Tengah. Arsitektur Islam tidak tampak pada bangunan atap masjid, justru yang tampak adalah bangunan khas peribadatan Hindu. Akulturasi budaya dimaksudkan untuk sarana mendakwahkan Islam pada masyarakat yang belum mengenal Islam.
Atap Tajuk adalah atap berbentuk limas atau limasan yang mirip dengan bentuk bangunan Pura ( tempat ibadah agamaHindu ). Tajuk paling bawah memiliki fungsi menaungi ruang utama sholat, kemudian tajuk yang kedua dengan kemiringan lebih vertikal dan lebih kecil diatas tajuk paling bawah, dan yang ketiga adalah tajuk paling atas dengan kemiringan semakin meruncing. Ketiga atap ini memiliki makna dari ajaran Islam, yaitu Iman, Islam dan Ihsan.
Mihrab
sumber : https://padasuka.id/
Yang unik dan memiliki nilai sejarah tinggi adalah bangunan mihrab Masjid Agung Demak. Ada sebuah prasasti bulus (sejenis kura-kura) pada mihrabnya. Prasasti tersebut merupakan Candara Sengkala Memet, yang memiliki arti Sariro Sunyi Kiblating Gusti. Prasati bulus adalah peringatan purna pugar Masjid Agung Demak atau Masji Kesultanan yang dipimpin oleh Kanjeng Sultan Raden Abdul Fattah Al Akbar Sayyidin Panotogomo,sebagai Raja atau Sultan di Kerajaan Islam Pulau Jawa tahun 1401 Saka atau tahun 1478 Miladiyah.
Bagian luar dinding Mihrab ada hiasa berupa kaligrafi tulisan Arab uang mengapit Surya Majapahit. Pada bagian sandaran belakang mimbar khutbah (Dampar Kencana) juga terdapat hiasan itu. Raden Fattah sebenarnya adlah anak dari Prabu Kertabumi, yaitu putra mahkota Brawijaya V Kerajaan Majapahit. Sehingga pada masjid Agung Demak dipasang simbol Hasta Brata Surya Majapahit untuk mengajarkan 8 sifat kepemimpinan pada Kesultanan Bintoro Demak.
Menara
sumber : https://jatengdaily.com/
Menara Masjid Agung Demak bukanlah peninggalan dari Kesultanan Demak. Namun menara masjid dibangun masa penjajahan Belanda pada 2 Agustus 1932. Waktu itu dipimpin oleh pemerintahan Bupati R AA Sosrohadiwidjojo. Kaki menara memiliki ukuran 4 x4 meter dan memiliki ketinggian 22 meter sangat kontras dengan gaya arsitektur masjid yang sangat khas bergaya Jawa tradisional.
Atas ide dan saran dari penghulu (ketua takmir masjid) waktu itu KH Moh Abdoerrochman. Bangunan menara masjid menghabiskan total biaya 10.000 Gulden. KH Moh Abdoerrochman memiliki sebuah tim yang beranggotakan R Danoe Wijoto, H Moh Taslim, H Aboe Bakar, dan H Moehsin.
Arsitek pembangunan menara adalah N.V Lyndetives dari Semarang. Menara memiliki gaya modern dengan kontruksi baja yang bertujuan supaya tidak menutupi bangunan kemegahan Masjid Agung Demak dan baja mampu bertahan cukup lama karena tidak keropos. Tujuan utama pembangunan menara adalah untuk tempat mengumandangkan adzan. Supaya suara bisa didengar dari radius jarak jauh maka menara disepakati dengan ketinggian 22 meter. Pengeras suara waktu itu adalah corong yang terbuat dari seng berbentuk kerucut.
Pada atap menara didesain berbentuk kubah dengan aksesoris bulan sabit yang sangat kental dengan arsitektur Islam. Dibawah kubah menara ada atap yang berbentuk segi delapan dengan kayu berhias lengkung sebagai dindingnya dan atap sirap. Pada menara juga terdapat jam kloneng sebagai penanda waktu, dan untuk mencapai puncak menara ada tangga tujuh trap dari papan kayu.
Kolam Wudhu
sumber : https://www.javaloka.com/
Sisi tenggara serambi masjid terdapat sebuah kolam wudhu. Batu kali yang bersusun di dalam tampak terlihat dari atas, sedangkan sisi timur kolam ada batas pagar yang dibuat dari pasangan bata yang dihias oleh batu-batu koral berwarna putih yang ditempelkan secara bersusun pada permukaan bata. Kolam wudhu ini dibanguan sejak awal berdirinya Masjid Agung Demak sebagai tempat bersuci. Namun saat ini kolam wudhu sudah tidak digunakan lagi untuk berwudhu.
Makam
sumber : https://pesona.travel/
Kompleks makam Masjid Agung Demak berada di sisi barat laut masjid. Makam masih berada di kompleks Masjid Agung Demak. Jika dari masjid untuk menuju kompleks makam, cukup berjalan melewati serambi masjid, kemudian menuju lorong yang menghubungkan dengan museum masjid. Makam-makam terlihat rapi karena makam terawat dengan baik. Ada tiga makam utama pada Makam Kasepuhan, yaitu Makam Raden Patah (Raden Abdul Fattah Al-Akbar Sayyidin Panotogomo, Sultan Demak I), Raden Patiunus (Pangeran Sabrang Lor, Raja Demak II), dan Dewi Murthosimah permaisuri Raden Patah. Selain pengunjung berwisata untuk melihat kemegahan Masjid Agung Demak, pengunjung juga bnyak yang melakukan ziarah kubur di kompleks makam masjid.
Museum
sumber : https://ranggawisata.com/
Museum Masjid Agung Demak berlokasi disisi utara masjid. Benda-benda sejarah peninggalan Masjid Agung Demak masa lalu disimpan dalam museum tadi. Setiap hari museum buka pada jam kerja, jadi tidak ada hari libur. Ada lebih dari 60 koleksi yang disimpan dalam museum masjid. Bangunan Museum Masjid Agung Demak diatas tanah seluas 16 meter perseg. Pembangunan museum menghabiskan dana sebesar Rp.1,1 Miliyar dari dana APBD Demak dan Badan Kesejahteraan Masjid / BKM Masjid Agung Demak.
Koleksi dalam museum seperti soko guru yang sudah rusak dari buatan keempat Wali (Sunan Kalijaga, Sunan Bonang, Sunan Gunungjati, dan Sunan Ampel). Kemudian ada Sirap, Kentongan, dan bedug peninggalan dari para Wali. Ada lagi dua buah gentong dari Dinasti Ming yang diperoleh hadiah dari Putri Campa di abad ke 14. Pintu Bledeg juga sudah dimuseumkan yang dibuat oleh Ki Ageng Selo. Foto-foto Masjid Agung Demak jaman dulu, lampu-lampu, perabot rumah tangga dari kristal kaca hadiah dari PB I di tahun 1710 M. Kitab suci Al-Quran 30 juz tulisan tangan, dan masih banyak lagi.
Fungsi Utama Masjid Agung Demak
sumber : https://jateng.tribunnews.com/
Masjid Agung Demak berfungsi sebagai tempat ibadah bagi masyarakat muslim. Selain itu, Masjid Agung Demak juga merupakan salah satu salah satu wisata religi di Demak, banyak pengunjung juga melakukan ziarah ke makam raja-raja Demak dan keluarganya. Masjid Agung Demak diusulkan sebagai Situs Warisan Dunia UNESCO pada tahun 1995.
Pengelola Masjid Agung Demak
Masjid Agung Demak milik negara Indonesia dan dikelola oleh Yayasan Sunan Muria.
